9月13日上午,继开云电子集团建设板块2016年半年工作会议在开云电子企业大厦顺利召开后,集团公司组织各区域公司回汉人员,在武汉地区标杆项目万科汉阳国际项目部进行现场交流。
万科汉阳国际项目部位于汉阳龙阳大道和陶家岭路交汇处,汉阳国际营销大厅南面,共3栋超高层住宅,其中1#、3#为框剪40F,2#楼框剪45F;占地面积1.7万方,总建筑面积8.2万方,其中住宅面积约7.2万方。
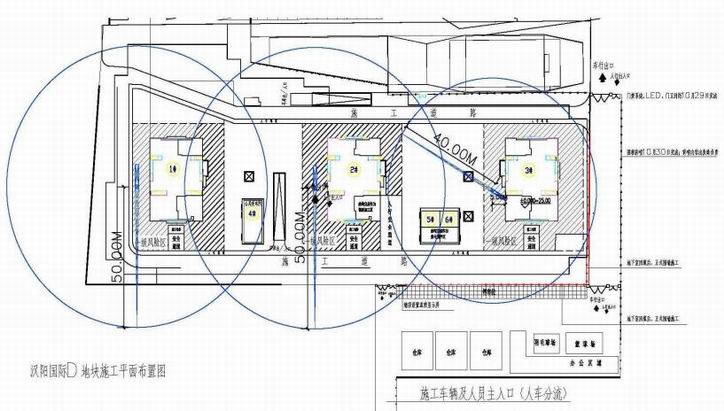
该项目在管理标准化上从现场布置、三区分离、外墙五同步、工期节省、项目策划、放线管理标准化、楼层移交、总分包管理、平衡施工合理穿插、正式市政园林先行绿色等各个方面着手提前策划与实施。

在安全管理标准化上从定型化防护、安全晨会制度、安全实施日检、周检;现场不仅采用安全美观的全钢爬架,而且另一个尤为突出的亮点:在每一位工友的安全帽上,都装设一个可扫描的智能芯片,里面装载每一位进入施工现场作业人员的姓名、年龄、工种及进出入时间等,一旦出现突发状况,第一时间进行定位并报警提醒。
在质量管理标准化上该项目在每个分项工程施工前,均编制详细可行的施工方案,并进行全面的技术交底;并且现场采用铝模等先进推广技术。
在文明施工管理标准化上从工友统一的安全帽与工服、施工现场的喷淋降尘与PM2.5检测、楼层垃圾及时工完场清、楼层设置临时厕所、正式消防管道当临时消防管道使用、场地硬化与绿化美化等进行统筹安排。
在项目管理创新上从铝模、外墙免抹灰、内墙薄抹灰、水泥基自流平、PC工艺(楼梯隔墙、阳台、空调位、消防栓内隔墙、屋面喷涂一体化)及钢筋工厂化加工进行全面推广。
该项目部娄斌武经理说:公司的质量、安全文明标准化正在持续推进中,我们项目部希望以本次内部交流会为契机,在全集团公司范围内进一步推进质量、安全文明标准化建设,逐步实现“筑品质开云电子、成百年基业”的企业愿景,为建设“美好家园” 而奋斗。
各区域公司参与交流人员纷纷表示通过此次交流,学习到:安全与质量在分析上必须要与当前生产形势相结合,真正做到形势分析融于生产、指导生产、促进生产。在目前安全形势分析的基础上,要积极探索如何创新亮点工程运行模式、如何激发全员积极性与主动性,以求达到人人参与安全的目的。要加强安全形势分析亮点工程的保障体系和长效机制建设,加大安全生产的宣传教育力度和奖惩力度,进一步做好活动开展综合评价和效果考核工作,对不严肃对待亮点工程和敷衍走过场的班组加大惩罚力度,对于能主动发现问题和提出有效合理化建议的班组着重奖励,确保公司亮点工程安全长效发展。
为把开云电子项目施工过程中对工程质量、安全文明、环保创新等方面的管控优势在开云电子集团所有项目上进行一个推广,项目部现场管理人员与工程部、安全部、技术部等各个部门之间,进行了全面的交流和深入的策划。各区域公司参与交流人员均对本次交流会给予高度好评!大家均希望通过此次交流,在多角度、全方位去展示开云电子在工程上的精益求精与不懈努力,每一位开云电子人,将一直在路上,始终坚持着“筑品质开云电子,成百年基业”的企业愿景!


企业邮箱
OA登录
财务系统
印章系统